Mafeking Road, Brighton
Monthly Rental Of £1,900
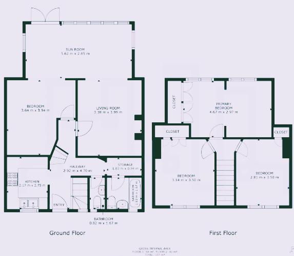
- Great Size 3/4 Bedroom Home great for either a family or Shares
- Good Size & flexible accommodation
- Lounge with doors on to large Sun Room
- Dining room/ Fourth Bedroom
- Kitchen
- Bathroom and Separate W.C
- 3 double bedrooms to First Floor with views
- West Facing Rear Garden
- Available NOW
Beaumonts are delighted to bring to the market this charming Three/Four bedroom home located in a residential area close to local amenities
Ground floor kitchen with good natural light. Lounge with doors leading out to the sun room, Fourth bedroom or Dining room. Ground floor bathroom, separate W.C .
Upstairs; Three good size bedrooms with fantastic views over Brighton.
Outside is a West facing rear garden .
The immediate area has local amenities with Coombe Road primary School 0.2 miles away, and both a large Sainsbury's and Aldi within 0.3 miles. Easy access to the A270 is ideal for road commuters and London Road Train Station is 0.9 miles away, Moulsecoomb station is within 0.8 miles . Brighton mainline station and city centre is 1.2 miles away providing excellent local shops, bars, coffee shops and the famous Brighton Pier.
Click to enlarge
| Name | Location | Type | Distance |
|---|---|---|---|
Brighton BN2 4EL
3
1
2


Mortgage Calculator